RS型柔性套管式伸缩器又称套管式伸缩器,热力管道伸缩器,管道伸缩器等。 RS型柔性套管式伸缩器主要具有寿命长、方便、耐用等性能,解决了原套管式伸缩器不产生偏角的问题,本产品很大偏角可达5.85度。RS型柔性套管式伸缩器在普通的松套伸缩接头的基础上通过调整本体的形状,使得松套伸缩接头能够具有一定量的角向位移,从而更好地适应管道线路的实际使用环境。
1. RS型柔性套管式伸缩器解决了原套管式伸缩器不产生偏角的问题,本产品很大偏角可达5.85度;
2. 表中长度数值,均系无偏角时的数值;
3. 本伸缩器由橡胶圈密封,伸缩器本身不能承受轴向拉力,一般将它安装在平直管道上。若靠近弯管或丁字管安装则应设置管道支墩,以免将伸缩器拉脱而漏水;
4. 本伸缩器中单盘短管可用外径的铸铁直管代替;
5. 套管式伸缩器该产品为各种给排水管道、水塔、水泵、水表、阀门的安装拆换提供了极大方便,给长距离管路因温差伸缩起到了很好的调节作用。
6. 套管式伸缩器该产品内管材分为铸铁(HT)、镀锌(DX)和钢制(SF)三种。法兰连接尺寸采用9115.1-2000标准;p>
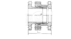
【产品别名】:套管式伸缩接头
【产品规格】:【DN40mm-DN1600mm】
【产品】:
【适用范围】:【弱酸、弱碱、弱腐蚀类、油、热水、冷水等】
【产品材质】:碳钢,球墨铸铁,不锈钢.
【产品颜色】:蓝色,可根据客户要求调色.
【工作温度】:-40度至80度
购买热线: 021-622-00727
RS型柔性套管式伸缩器解决了原套管式伸缩器不产生偏角的问题,本产品很大偏角可达5.85度。比传统的伸缩接头有更好的密封和防拉脱性能,产品适用于输送海水、淡水、冷热水、饮用水、生活污水、原油、燃油、润滑油、成品油、空气、煤气、温度不高于250度的蒸汽和颗粒粉状等介质。本伸缩器由橡胶圈密封,伸缩器本身不能承受轴向拉力,一般将它安装在平直观点管道上。若靠近弯管或丁字管安装则应设置管道支墩,以免将伸缩器拉脱而漏水,密封性能好,不易泄露。
RS型柔性套管式伸缩器的安装注意事项:
1、RS型柔性套管式伸缩器在安装前应先检查其型号、规格及管道配置情况,必须符合设计要求。
2、严禁用伸缩器变形的方法来调整管道的安装超差,以免影响伸缩器的正常功能、降低使用寿命及增加管系、设备、支承构件的载荷。
3、套管式伸缩器所有活动元件不得被外部构件卡死或限制其活动范围,应保证各活动部位的正常动作。
4、水压试验时,应对装有伸缩器管路端部的次固定管架进行加固,使管路不发生移动或转动。对用于气体介质的伸缩器及其连接管路,要注意充水时是否需要增设临时支架。以上是针对RS型柔性套管式伸缩器做出的详细介绍,上海尊龙凯时人生就是搏!官网严格按照~产品标准,采用好的技术和颇负盛名的技术人才,出厂每一件产品都经过严密的检验与检测,以质量占领市场以诚信赢得客户。
江苏与上海、浙江、安徽共同构成的长江三角洲城市群已成为6大盛名城市群之一。江苏人均GDP、综合竞争力、地区发展与民生指数(DLI)均居全国各省~,成为中国综合发展水平很高的省份,已步入中上等发达~水平。江苏地区特别是它的管道行业发展更是极为迅猛。
套管式伸缩器是通过体管、伸缩管、压兰、密封圈组成的,现在,套管式伸缩器比较适合应用于给排水工程,为城镇的自来水塔、泵房水表、阀门的安装、拆换提供了方便,套管式伸缩器对长距离管道使用的温差所引起的伸缩问题,也起到了很好的填补作用。
既然套管式伸缩器有这么好的用处,那么如何安装套管式伸缩器,就需要注意的事项有以下几点了:
1、安装长度很好在很大和很小的长度之间,这样可以根据实际情况或者出现的问题可以进行调整。一般情况下选择在套管式伸缩器伸缩量的二分之一处为标准。
2、套管式伸缩器在安装的时候,必须要松开压盘螺栓,调整好安装的长度,然后再对角把螺栓拧紧,千万不要压偏,以免起到止漏的作用。
3、伸缩器必须安装在止回阀的后部。
4、伸缩器就像架空使用,两端必须要安装相应的固定支架,其自身是不会承受轴向拉力的,在必要的时候,是可以加防拉脱装置的。
尊龙凯时人生就是搏!官网管道生产的套管式伸缩器具有良好的位移补偿功能,使用寿命长,伸缩量大。正因为伸缩器拥有良好的综合性能,因此,它能广泛的应用于化工、建筑、给水、排水、石油、轻重工业、冷冻、卫生、水暖、消防、电力等基础工程的。

请点击图片看大图
| 序号No. | 名称Name | 数量Quantity | 材料Material |
| 1 | 本体Body | 1 | QT400-15,Q235A,ZG230-450,20 |
| 2 | 密封圈Gasket | 1 | NBR |
| 3 | 压盖Cover | 1 | QT400-15,Q235A,ZG230-450,20 |
| 4 | 螺母Nut | 6n | Q235A,20,1Cr8Ni9Ti |
| 5 | 螺柱bolt | n | Q235A,35,1Cr8Ni9Ti |
请点击图片看大图
|
公称通径 |
长度Length(L) | ||
| 很小(min.)L | 安装Installation Length L | 很大(max.)L | |
| 40 |
140 |
160 |
180 |
| 50 |
145 |
165 |
185 |
| 65 | 145 |
165 |
185 |
| 80 | 160 |
180 |
200 |
| 100 |
170 |
180 |
210 |
| 125 |
170 |
190 |
210 |
| 150 | 175 |
190 |
215 |
| 200 | 180 |
195 |
220 |
| 250 | 235 |
200 |
285 |
| 300 |
250 |
260 |
310 |
| 350 | 265 |
280 |
335 |
| 400 | 280 |
300 |
360 |
| 450 | 295 |
320 |
385 |
| 500 | 310 |
340 |
410 |
| 600 | 340 |
360 |
460 |
| 700 |
370 |
400 |
510 |
| 800 | 400 |
440 |
540 |
| 900 | 430 |
470 |
570 |
| 1000 | 450 |
500 |
600 |
| 1200 | 475 |
525 |
625 |
| 1400 | 500 |
550 |
660 |
| 1600 | 530 |
610 |
690 |
专业制造、专业服务,尊龙凯时人生就是搏!官网为你创造更多价值 !
不断提升服务质量,精益求精,“真诚的服务”是尊龙凯时人生就是搏!官网永恒的主题。尊龙凯时人生就是搏!官网严格按照 要求,质量严格把关,责任到人,确保生产、销售、服务的健康运行。加强与用户沟通,竭诚为广大客户提供优质产品,至善至美服务,特此尊龙凯时人生就是搏!官网做出如下承诺:
产品标准
产品严格按照中国 GB、HG 标准和美国 API 等标准设计、制造、验收。密封面硬度达到规定要求,宽度超过标准。
售前服务
产品介绍,技术交流,非标产品设计,疑难解答。
售中服务
1、守信合同,保证及时供货,随时保持与客户联系
2、对特殊或复杂的产品,我厂安排技术人员对用户进行产品使用、故障排除、调式及维修进行培训和指导。
售后服务
1、尊龙凯时人生就是搏!官网产品质保期为自出厂起 12 个月,实行“三包”服务(包退、包换、包修)。
2、产品在使用中我厂定期组织技术、检查人员进行访问,征询用户对产品质量、使用状况、改进意见等方面的反馈,以便进一步提高产品质量。
3、对用户投诉产品质量问题,快速做出反映,售后服务人员在 24-36 小时(省外 48 小时)赶赴现场。
4、对售后服务,要求用户填写服务后的质量反馈表,并做出鉴定意见,共同提高尊龙凯时人生就是搏!官网的产品质量与服务质量。
1、客户采购清单请传真至 E-mail:,或来电咨询 。
2、收到客户采购清单,为客户提供产品型号选型与报价(价格清单)。
3、具体商定:交货期、特殊要求等事宜。
订货须知
1、客户对产品有特殊要求,须在订货合同中提供以下说明:
(1)结构长度
(2)连接形式
(3)公称直径、全通径、缩径、管道尺寸
(4)用介质及温度、压力范围
(5)实验、检验标准及其他要求本厂可根据客户特殊要求配置定做和设计特殊产品。
2、本厂可根据客户特殊要求配置定做和设计特殊产品。
3、如由客户提供确定的产品类型和型号时,客户应正确说明其型号的含义和要求,在供需双方理解一致的条件下签订合同。
您可以填写下面的表格,把您的联系方式和产品需求提交给尊龙凯时人生就是搏!官网,尊龙凯时人生就是搏!官网将尽快与您联系解决,谢谢!为了能及时和您取得联系,请您务必完整填写您的联系方式和需求信息。
您也可以联系在线客服