XB矩形风道纤维织物补偿器是由橡胶和纤维织物复合材料、钢置法兰、套筒、保温隔热材料组成,主要用于各种风机、风管之间的柔性连接,其功能是减振、降噪、密封、耐介质,便于位移和安装。是环境保护领域中极为理想的减震、降噪、消除烟尘的管道件。
【产品名称】:XB矩形风道纤维织物补偿器
【产品别名】:矩形纤维织物补偿器、纤维织物补偿器、矩形纤维织物补偿器
【产品规格】:【DN500mm-DN2000mm】
【产品】:
【适用范围】:【排烟脱硫,除尘设备,空气加热,助流鼓风等设备】
【产品材质】:织物纤维
【产品颜色】:红色,可根据客户要求调色.
【工作环境】:高温环境
购买热线: 021-622-00727
补偿热膨胀: XB矩形风道纤维织物补偿器可以在较少的尺寸范围内提供较大的多维方向补偿。
补偿安装误差:由于管道连接中,系统误差在所难免,XB矩形风道纤维织物补偿器能较好地消除安装误差。
消音隔振:纤维织物,保温棉本身具有吸音、隔绝振动传递的功能,能有效地减少锅炉、风机等系统的噪音和振动。
无反推力:由于主体材料为纤维织物,无力的传递,用非金属膨胀节可简化设计。
耐高温耐腐蚀:使用的氟塑料,有机硅材料具有良好的耐高温行耐腐蚀等性能。
密封性能好:在各种介质作用下,具有良好的密封性。价格低廉:进口同类产品的1/2~1/3。安装维修方便。
矩形风道纤维织物补偿器可补偿轴向、横向、角向,具有无推力、简化支座设计、耐腐蚀、耐高温、消声减振等特点,特别适用于热风管道及烟尘管道。
1、法兰螺栓应逐步均匀地加压拧紧,所有螺丝栓松紧度尽可能一致。使用条件恶劣的场合,除加平垫外可添加弱弹簧圈,以防螺母松动。
2、补偿器与配套平焊法兰之间应按工作温度选用相应橡胶石棉垫片。
3、在试行时,应将补偿器限位螺丝作适当调整,便于产品伸长或压缩。
4、焊管连接时,应将限位螺丝适当松动,防止将补偿器限位板拉弯或产品变形。
5、焊接作业时作盖物遮住橡胶(织物)表面,防止焊渣损伤产品。
记者25日从中国长江三峡集团公司获悉,三峡集团成功签约总装机容量45万千瓦的几内亚苏阿皮蒂水电站项目。
据三峡集团介绍,苏阿皮蒂水电站是几内亚孔库雷河梯级开发的第2级水电站,距离几内亚首都科纳克里约135公里。这个电站正常蓄水位210米,总装机容量45万千瓦。建成后,不仅能满足几内亚国内的电力需求,多余电能还将输送至冈比亚、塞内加尔等周边~。
1月20日,三峡集团与几内亚~有关部门正式签署了苏阿皮蒂水电站项目总承包合同,合同金额13.8亿美元,合同工期58个月。这也是继凯乐塔水电站之后,三峡集团在几内亚签署的第二个大型水电站项目。
上海尊龙凯时人生就是搏!官网生产的XB矩形风道纤维织物补偿器是由橡胶和纤维织物复合材料、钢置法兰、套筒、保温隔热材料组成,主要用于各种风机、风管之间的柔性连接,其功能是减振、降噪、密封、耐介质,便于位移和安装。是环境保护领域中极为理想的减震、降噪、消除烟尘的管道件。

请点击图片看大图
| 风道纤维织物补偿器设计温度下的材料等级 | ||||||
| 1 | T≤350℃ | A | Ⅰ | Q235A | Q235A | 隔热保温层填充硅酸铝纤维棉,耐热衬里采用迷宫式结构 |
| 2 | 350℃<T<650℃ | B | Ⅱ | Q235、16Mm | 16Mm | |
| 3 | 650℃<T<1200℃ | C | Ⅲ | 16Mm | 16Mn | |
| Ⅰ类圈带为 | Ⅱ类圈带为 | Ⅲ类圈带为 | |
| ~层 | 面层硅橡胶玻璃纤维织物布 | 面层硅橡胶玻璃纤维织物布 | 面层硅橡胶玻璃纤维织物布 |
| 第二层 | 夹丝玻璃纤维布 | 工业用帆布 | 工业用帆布 |
| 第三层 | 石棉帘布 | 石棉帘布 | 硅酸铝玻璃纤布 |
| 第四层 | 聚乙烯薄膜 | 玻璃纤维毯 | 石棉布 |
| 第五层 | 石棉毯 | 石棉布 | 锆玻璃纤维毯 |
| 第六层 | 不锈钢金属丝网 | 丝玻璃纤维布 | 夹丝玻璃纤维布 |
| 第七层 | 不锈钢金属丝网 | 不锈钢金属丝网 | 不锈钢金属丝网 |
请点击图片看大图
|
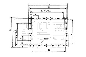
矩形产品规格 Specification of Rectangular |
管道外径 External Diameter of Pipe |
A | B | 11 | K | C1 | C2 | t | t1 | t2 | t3 | 11 | k | n1 | n2 | c1/c2 | d |
螺栓孔数 No.of bolts n |
| 700×500 | 700×500 | 702 | 502 | 792 | 592 | 760 | 560 | 95 | 95 | 95 | 90 | 570 | 3 | 4 | 29/29 | 14 | 28 | |
| 700×700 | 700×700 | 702 | 792 | 760 | 95 | 570 | 6 | 32 | ||||||||||
| 700×800 | 700×800 | 802 | 814 | 914 | 774 | 874 | 112 | 110 | 109 | 110 | 550 | 654 | 5 | 6 | 36/36 | 18 | 30 | |
| 800×800 | 800×800 | 802 | 914 | 914 | 874 | 874 | 110 | 109 | 654 | 654 | 6 | 6 | 32 | |||||
| 800×1200 | 800×1200 | 1202 | 1314 | 1274 | 116 | 115 | 1044 | 9 | 38 | |||||||||
| 800×1600 | 800×1600 | 1602 | 1714 | 1674 | 119 | 123 | 1428 | 12 | 44 | |||||||||
| 900×400 | 900×400 | 902 | 402 | 992 | 492 | 960 | 60 | 96 | 96 | 92 | 92 | 768 | 276 | 8 | 3 | 29/29 | 14 | 30 |
| 900×700 | 900×700 | 702 | 814 | 974 | 774 | 124 | 121 | 110 | 112 | 726 | 550 | 6 | 5 | 36/36 | 18 | 30 | ||
| 900×1200 | 900×1200 | 1202 | 1314 | 1274 | 110 | 11 | 1044 | 9 | 38 | |||||||||
| 1000×600 | 1000×600 | 1002 | 602 | 1114 | 714 | 1074 | 674 | 117 | 120 | 112 | 113 | 840 | 448 | 7 | 4 | 30 | ||
| 1000×700 | 1000×700 | 702 | 814 | 774 | 110 | 112 | 550 | 5 | 32 | |||||||||
| 1000×800 | 1000×800 | 802 | 914 | 974 | 109 | 110 | 654 | 6 | 31 | |||||||||
| 1000×1000 | 1000×1000 | 1002 | 1114 | 1074 | 120 | 117 | 840 | 7 | 36 | |||||||||
| 1200×600 | 1200×600 | 1202 | 602 | 1314 | 714 | 1274 | 674 | 115 | 116 | 112 | 113 | 1041 | 448 | 9 | 4 | 34 | ||
| 1200×700 | 1200×700 | 702 | 814 | 774 | 110 | 112 | 550 | 5 | 36 | |||||||||
| 1200×800 | 1200×800 | 802 | 914 | 874 | 115 | 116 | 654 | 6 | 38 | |||||||||
| 1200×1000 | 1200×1000 | 1002 | 1114 | 1074 | 120 | 117 | 840 | 7 | 40 | |||||||||
| 1200×1200 | 1200×1200 | 1202 | 1314 | 1274 | 116 | 115 | 1044 | 9 | 41 | |||||||||
| 1400×700 | 1400×700 | 1402 | 702 | 1514 | 814 | 1474 | 774 | 110 | 114 | 110 | 112 | 1254 | 550 | 11 | 5 | 40 | ||
| 1400×800 | 1400×800 | 802 | 914 | 874 | 109 | 110 | 654 | 6 | 42 | |||||||||
| 1400×900 | 1400×900 | 902 | 1014 | 974 | 121 | 124 | 726 | 6 | ||||||||||
| 1400×1000 | 1400×1000 | 1002 | 1114 | 1074 | 120 | 117 | 840 | 7 | 44 | |||||||||
| 1400×1210 | 1400×1210 | 1202 | 1314 | 1274 | 116 | 115 | 1044 | 9 | 48 | |||||||||
| 1500×800 | 1500×800 | 1502 | 802 | 1614 | 914 | 1574 | 874 | 116 | 122 | 109 | 110 | 1342 | 654 | 6 | 42 | |||
| 1500×900 | 1500×900 | 902 | 1014 | 974 | 121 | 124 | 726 | |||||||||||
| 1500×1000 | 1500×1000 | 1002 | 114 | 1074 | 120 | 117 | 840 | 7 | 44 | |||||||||
| 1500×1200 | 1500×1200 | 1202 | 1314 | 1274 | 116 | 115 | 10 | 9 | 48 | |||||||||
| 1600×1000 | 1600×1000 | 1602 | 1002 | 1714 | 114 | 1674 | 1074 | 117 | 120 | 120 | 117 | 1440 | 840 | 12 | 7 | 36/36 | 18 | 46 |
| 1600×1200 | 1600×1200 | 1202 | 1314 | 1274 | 116 | 115 | 1044 | 9 | 50 | |||||||||
| 1600×1400 | 1600×1400 | 1402 | 1728 | 1528 | 1678 | 1478 | 139 | 140 | 134 | 136 | 1400 | 1206 | 10 | 38/38 | 20 | 46 | ||
| 1600×1600 | 1600×1600 | 1602 | 1728 | 1678 | 140 | 139 | 1400 | 10 | 48 | |||||||||
| 1800×900 | 1800×900 | 1802 | 902 | 1914 | 1014 | 1874 | 974 | 118 | 117 | 121 | 124 | 1638 | 726 | 14 | 6 | 36/36 | 22 | |
| 1800×1000 | 1800×1000 | 1002 | 1114 | 1074 | 120 | 117 | 840 | 7 | 50 | |||||||||
| 1800×1200 | 1800×1200 | 1202 | 1928 | 1328 | 1878 | 1278 | 135 | 134 | 142 | 142 | 1638 | 9914 | 12 | 46 | ||||
| 1800×1400 | 1800×1400 | 1402 | 528 | 1478 | 134 | 136 | 1026 | 9 | 50 | |||||||||
| 1800×1800 | 1800×1800 | 1802 | 1928 | 1878 | 135 | 1608 | 12 | 56 | ||||||||||
| 2000×1000 | 2000×1000 | 1004 | 1130 | 1080 | 135 | 135 | 810 | 6 | 46 |
专业制造、专业服务,尊龙凯时人生就是搏!官网为你创造更多价值 !
不断提升服务质量,精益求精,“真诚的服务”是尊龙凯时人生就是搏!官网永恒的主题。尊龙凯时人生就是搏!官网严格按照 要求,质量严格把关,责任到人,确保生产、销售、服务的健康运行。加强与用户沟通,竭诚为广大客户提供优质产品,至善至美服务,特此尊龙凯时人生就是搏!官网做出如下承诺:
产品标准
产品严格按照中国 GB、HG 标准和美国 API 等标准设计、制造、验收。密封面硬度达到规定要求,宽度超过标准。
售前服务
产品介绍,技术交流,非标产品设计,疑难解答。
售中服务
1、守信合同,保证及时供货,随时保持与客户联系
2、对特殊或复杂的产品,我厂安排技术人员对用户进行产品使用、故障排除、调式及维修进行培训和指导。
售后服务
1、尊龙凯时人生就是搏!官网产品质保期为自出厂起 12 个月,实行“三包”服务(包退、包换、包修)。
2、产品在使用中我厂定期组织技术、检查人员进行访问,征询用户对产品质量、使用状况、改进意见等方面的反馈,以便进一步提高产品质量。
3、对用户投诉产品质量问题,快速做出反映,售后服务人员在 24-36 小时(省外 48 小时)赶赴现场。
4、对售后服务,要求用户填写服务后的质量反馈表,并做出鉴定意见,共同提高尊龙凯时人生就是搏!官网的产品质量与服务质量。
1、客户采购清单请传真至 E-mail:,或来电咨询 。
2、收到客户采购清单,为客户提供产品型号选型与报价(价格清单)。
3、具体商定:交货期、特殊要求等事宜。
订货须知
1、客户对产品有特殊要求,须在订货合同中提供以下说明:
(1)结构长度
(2)连接形式
(3)公称直径、全通径、缩径、管道尺寸
(4)用介质及温度、压力范围
(5)实验、检验标准及其他要求本厂可根据客户特殊要求配置定做和设计特殊产品。
2、本厂可根据客户特殊要求配置定做和设计特殊产品。
3、如由客户提供确定的产品类型和型号时,客户应正确说明其型号的含义和要求,在供需双方理解一致的条件下签订合同。
您可以填写下面的表格,把您的联系方式和产品需求提交给尊龙凯时人生就是搏!官网,尊龙凯时人生就是搏!官网将尽快与您联系解决,谢谢!为了能及时和您取得联系,请您务必完整填写您的联系方式和需求信息。
您也可以联系在线客服