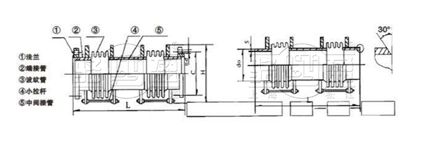
JXH型小拉杆横向波纹补偿器由两段波纹管、中间接管及带有限螺母的小拉杆等零件组成,它在吸收管系任意平面内的横向位移,同时吸收轴向位移。小拉杆不能承受内压推力。.用户使用时若需要小拉杆,在安装后务必将螺母松开并离天耳板(或撑板)一段距离(数值由由向补偿量确定).若实际补偿量大于样本上的规定值(寿命≤1000次),产品在安装后必须拆除小拉杆。
【产品名称】:JXH型小拉杆横向波纹补偿器
【产品别名】:小拉杆波纹补偿器,横向波纹补偿器
【产品规格】:【DN100mm-DN600mm】
【产品压力】:0.6-1.6MPa
【产品】:
【适用范围】:【弱酸、弱碱、弱腐蚀类、油、热水、冷水等】
【产品材质】:碳钢,球墨铸铁,不锈钢.
【产品颜色】:蓝色,可根据客户要求调色.
【工作温度】:-40度至80度
购买热线: 021-622-00727
JXH型小拉杆横向波纹补偿器习惯上也叫膨胀节,或伸缩节。小拉杆横向型补偿器属于一种补偿元件。利用其工作主体波纹管的有效伸缩变形,以吸收管线、导管、容器等由热胀冷缩等原因而产生的尺寸变化,或补偿管线、导管、容器等的轴向、横向和角向位移。也可用于降噪减振。在现代工业中用途广泛。产品适用于输送海水、淡水、冷热水、饮用水、生活污水、原油、燃油、润滑油、成品油、空气、煤气、温度不高于250度的蒸汽和颗粒粉状等介质。
1.补偿吸收管道轴向、横向、角向热变形。
2. 波纹补偿器伸缩量,方便阀门管道的安装与拆卸。
3.吸收设备振动,减少设备振动对管道的影响。
4.吸收地震、地陷对管道的变形量。
使用说明:
小拉杆横向型波纹补偿器除可以补偿弯曲管道的横向位移和角位移,同时也可以补偿轴向位移。样本中所列的轴向补偿量及横向补偿量(X0、Y0 )均单独用作轴向补偿或横向补偿的很大值,此种情况应分别满足以下关系式:
X1≤Xo Y1≤Yo
X1、Y1为单独用作轴向补偿或横向补偿的实际值
当补偿器同时存在轴向位移和横向位移时,两种补偿量(X1,Y1)的选取应满足下列关系式:
此时,X1,Y1为同时存在轴向位移及横向位移的实际值。
小拉杆横向波纹补偿器对支座作用力的计算:
某碳钢管道,公称通径500mm,工作压力0.6Mpa,介质温度350摄氏度,环境很低温度-100摄氏度,补偿器安装温度20摄氏度,根据管道布局需安 装一小拉杆横向型波纹补偿器,用以补偿50mm的轴向位移及30mm的横向位移,已知L=50,补偿器疲劳破次数按15000次考虑,试计算支座A的受力。
1月26日,马鞍山规模化生物天然气工程试点项目在博望区丹阳镇正式开工。据悉,该项目建设工期预计8个月,今年底可竣工,投产后年产生物天然气400多万立方米,并可产副产品碳基有机肥2万多吨。
该项目于2015年7月1日获省发改委和省农委批复,项目实施单位为市博瑞新能源科技有限公司,项目总投资7505万元,其中中央预算内投资3000万元,企业自筹资金4505万元。该企业总工赵炳森介绍,该项目是将小麦、油菜等秸秆转化成既~又节能的生物能源。一期项目投产后,年可消化秸秆2万多吨,日产2万方沼气,经过提纯变成1.2万方生物质天然气。同时其产生的沼渣经过深加工后,成为碳基有机肥添加剂,制成肥料后可有效地改善土壤结构。
尊龙凯时人生就是搏!官网生产的小拉杆横向型补偿器属于一种补偿元件。利用其工作主体波纹管的有效伸缩变形,以吸收管线、导管、容器等由热胀冷缩等原因而产生的尺寸变化,或补偿管线、导管、容器等的轴向、横向和角向位移。也可用于降噪减振。在现代工业中用途广泛。产品适用于输送海水、淡水、冷热水、饮用水、生活污水、原油、燃油、润滑油、成品油、空气、煤气、温度不高于250度的蒸汽和颗粒粉状等介质。该项目采用小拉杆横向波纹补偿器的情况下能够提高管线整体的稳定性,并且针对管线的位移提供充足的补偿作用。
记者从博望区发改委了解到,该项目主要是让农民承包田里秸秆实现综合利用,项目投产后,可有效解决农民秸秆无法处理问题,实现秸秆禁烧,改善空气环境。为推进该试点项目按预期竣工,该区从去年7月份起就成立了项目推进优异小组,将该项目列入区重大项目之一,监督秸秆原料库、秸秆青贮池等设施及配套工程建设。
请点击图片看大图
公称通径 Nominal Diameter DN |
压力Pressure 0.6Mpa | 压力1.0Mpa | 压力1.6Mpa |
有效面积 Available area cm2 |
焊接端管 Soldering end ring mm |
总长 Total length 1mm |
|||
轴向位移/轴向刚度 Axial displacement /Axial Stiffness |
横向位移/横向刚度 Horizontal displacement /Horizontal Stiffness |
轴向位移/轴向刚度 Axial displacement /Axial Stiffness |
横向位移/横向刚度 Horizontal displacement /Horizontal Stiffness |
轴向位移/轴向刚度 Axial displacement /Axial Stiffness |
横向位移/横向刚度 Horizontal displacement /Horizontal Stiffness |
||||
100 | 32/210 | 96/8.0 | 28/252 | 86/96 | 26/302 | 78/12 | 154 | 108*4 | 1000 |
200/2.0 | 180/25 | 162/3.1 | 1500 | ||||||
306/0.89 | 27/11 | 284/1.3 | 2000 | ||||||
411/0.50 | 370/06 | 333/0.75 | 2500 | ||||||
125 | 33/170 | 83/18 | 31/204 | 78/216 | 29/245 | 75/25.9 | 180 | 133*4 | 1000 |
115/6.8 | 109/82 | 103/9.8 | 1500 | ||||||
198/3.5 | 188/4.2 | 178/5.0 | 2000 | ||||||
269/1.8 | 255/2.2 | 242/2.6 | 2500 | ||||||
150 | 32/290 | 65/21 | 30/348 | 61/252 | 27/417 | 58/30.2 | 299 | 159*45 | 1000 |
136/54 | 129/65 | 122/7.8 | 1500 | ||||||
107/2.4 | 197/28 | 186/3.5 | 2000 | ||||||
279/1.4 | 265/168 | 251/2.1 | 2500 | ||||||
200 | 48/326 | 72/47 | 43/391 | 68/56.4 | 40/469 | 65/70.5 | 531 | 219*6 | 1000 |
160/11 | 152/13.2 | 144/16.5 | 1500 | ||||||
250/5.0 | 237/60 | 225/7.5 | 2000 | ||||||
341/2.8 | 324/3.4 | 291/4.1 | 2500 | ||||||
250 | 46/400 | 127/20 | 43/480 | 114/25 | 38/576 | 108/30 | 774 | 273*8 | 1500 |
199/9.0 | 179/108 | 170/13.5 | 2000 | ||||||
271/5.0 | 257/60 | 231/7.5 | 2500 | ||||||
343/3.2 | 325/38 | 293/4.6 | 3000 | ||||||
300 | 59/336 | 134/25 | 56/403 | 127/30 | 50/483 | 121/36 | 1069 | 325*8 | 1500 |
213/11 | 202/13.2 | 192/15.8 | 2000 | ||||||
292/6.0 | 277/7.2 | 263/8.6 | 2500 | ||||||
372/3.8 | 353/4.6 | 335/5.4 | 3000 | ||||||
350 | 58/336 | 107/40 | 55/402 | 102/44 | 52/442 | 96/48 | 1263 | 377*8 | 1500 |
178/16 | 167/17 | 161/22 | 2000 | ||||||
250/8.5 | 237/10 | 226/12 | 2500 | ||||||
322/5.3 | 306/69 | 290/9.6 | 3000 | ||||||
400 | 57/415 | 92/58 | 54/48 | 87/63 | 51/492 | 83/69 | 1612 | 426*8 | 1500 |
154/23 | 142/25 | 135/27 | 2000 | ||||||
215/12 | 204/13 | 196/15 | 2500 | ||||||
278/7.7 | 264/9 | 250/11 | 3000 | ||||||
450 | 55/415 | 81/80 | 52/465 | 77/88 | 49/484 | 73/96 | 1995 | 478*8 | 1500 |
135/32 | 128/35 | 122/38 | 2000 | ||||||
189/17 | 180/19 | 171/21 | 2500 | ||||||
243/11 | 230/12 | 218/13 | 3000 | ||||||
500 | 90/746 | 36/241 | 72/895 | 32/260 | 58/984 | 29/281 | 2625 | 529*10 | 1400 |
68/89 | 62/96 | 56/104 | 1700 | ||||||
102/42 | 92/45 | 83/49 | 2000 | ||||||
126/68 | 113/30 | 102/32 | 2200 | ||||||
166/18 | 149/19 | 134/21 | 2500 | ||||||
192/12 | 178/13 | 160/14 | 2800 | ||||||
600 | 94/820 | 42/208 | 85/886 | 38/224 | 75/948 | 34/242 | 3590 | 630*10 | 1500 |
71/102 | 64/110 | 58/118 | 1800 | ||||||
106/47 | 95/51 | 86/55 | 2200 | ||||||
135/30 | 121/32 | 111/35 | 2500 | ||||||
168/21 | 156/23 | 141/25 | 2800 | ||||||
199/14 | 183/15 | 168/17 | 3200 |
注:大于DN600的均可按用户要求制造
Note:custom-made products(>DN600) are available
专业制造、专业服务,尊龙凯时人生就是搏!官网为你创造更多价值 !
不断提升服务质量,精益求精,“真诚的服务”是尊龙凯时人生就是搏!官网永恒的主题。尊龙凯时人生就是搏!官网严格按照 要求,质量严格把关,责任到人,确保生产、销售、服务的健康运行。加强与用户沟通,竭诚为广大客户提供优质产品,至善至美服务,特此尊龙凯时人生就是搏!官网做出如下承诺:
产品标准
产品严格按照中国 GB、HG 标准和美国 API 等标准设计、制造、验收。密封面硬度达到规定要求,宽度超过标准。
售前服务
产品介绍,技术交流,非标产品设计,疑难解答。
售中服务
1、守信合同,保证及时供货,随时保持与客户联系
2、对特殊或复杂的产品,我厂安排技术人员对用户进行产品使用、故障排除、调式及维修进行培训和指导。
售后服务
1、尊龙凯时人生就是搏!官网产品质保期为自出厂起 12 个月,实行“三包”服务(包退、包换、包修)。
2、产品在使用中我厂定期组织技术、检查人员进行访问,征询用户对产品质量、使用状况、改进意见等方面的反馈,以便进一步提高产品质量。
3、对用户投诉产品质量问题,快速做出反映,售后服务人员在 24-36 小时(省外 48 小时)赶赴现场。
4、对售后服务,要求用户填写服务后的质量反馈表,并做出鉴定意见,共同提高尊龙凯时人生就是搏!官网的产品质量与服务质量。
1、客户采购清单请传真至 E-mail:,或来电咨询 。
2、收到客户采购清单,为客户提供产品型号选型与报价(价格清单)。
3、具体商定:交货期、特殊要求等事宜。
订货须知
1、客户对产品有特殊要求,须在订货合同中提供以下说明:
(1)结构长度
(2)连接形式
(3)公称直径、全通径、缩径、管道尺寸
(4)用介质及温度、压力范围
(5)实验、检验标准及其他要求本厂可根据客户特殊要求配置定做和设计特殊产品。
2、本厂可根据客户特殊要求配置定做和设计特殊产品。
3、如由客户提供确定的产品类型和型号时,客户应正确说明其型号的含义和要求,在供需双方理解一致的条件下签订合同。
您可以填写下面的表格,把您的联系方式和产品需求提交给尊龙凯时人生就是搏!官网,尊龙凯时人生就是搏!官网将尽快与您联系解决,谢谢!为了能及时和您取得联系,请您务必完整填写您的联系方式和需求信息。
您也可以联系在线客服